PLANOS DE CASA DE 100m2 DUPLEX DE 2 DORMITORIOS (Dx-2D-01)
+ Planos completos del legajo técnico para la construcción de una vivienda de 100m2 en dúplex (dos pisos) de dos dormitorios que puede implantarse en un terreno de 6,60mts de frente y 12,50mts de fondo, como mínimo.
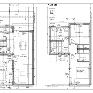
+ Contiene toda la información que presenta un arquitecto cuando realiza un trabajo profesional de "proyecto": todos los planos, planillas y detalles de arquitectura, estructuras e instalaciones.
+ Tiene la opción de descargar dos diferentes orientaciones, para poder construir la casa teniendo en cuenta el mejor asoleamiento, las ventilaciones convenientes y las mas lindas vistas.
+ Si se repiten adosados, pueden conformar un conjunto de viviendas.
+ Te invito a ver el video, en él encontrarás toda la información de cómo es la distribución, los materiales y las características de esta casa dúplex.
Archivos que recibirás:
* ARCHIVO DE AUTOCAD (.dwg) CON TODOS LOS DIBUJOS
* IMÁGENES DE FRENTE Y CONTRAFRENTE (.jpg)
* PLANOS DE OBRA: Archivos PDF para descargar (imprimibles en láminas A3):
01- ARQUITECTURA- Superficies, Planillas y Cubiertas
02- ARQUITECTURA- Plantas
03- ARQUITECTURA- Vistas
04- ARQUITECTURA- Corte AA y Bajoescalera
05- ARQUITECTURA- Corte BB y Detalle de cocina
06- ARQUITECTURA- Carpinterías
07- ESTRUCTURAS- Fundaciones y Escalera
08- ESTRUCTURAS- Entrepiso y Cubiertas
09- ESTRUCTURAS- Detalles
10- INSTALACIONES- Cloacales y pluviales
11- INSTALACIONES- Agua fría y caliente
12- INSTALACIONES- Bocas de gas
13- INSTALACIONES- Bocas de electricidad
* PLANOS PARA PRESENTACIÓN MUNICIPAL: Archivos PDF para descargar (imprimibles en láminas grandes):
01- ARQUITECTURA - Plano municipal completo
02- ESTRUCTURAS - Plano municipal completo
03- INSTALACIONES - Plano municipal
:background_color(white)/hotmart/product_pictures/00bbd748-4ffe-4041-8818-2b16e2e34a84/Dx2D01a.jpg?w=920)